
La résidence meudonnaise
Planification et consultation d'entreprises pour un chantier de rénovation extérieure d'un ensemble de logements.
(Chantier prévu pour 2025).
À propos
L'agence Abssys Architecture où je travaillais en tant que collaborateur avait été appelée par cette copropriété meudonnaise suite à la découverte de grands problème d'étanchéité au niveau du parking sous jardin planté, menaçant directement la pérennité de l'ouvrage.
Chargé du projet par le chef d'agence, mes missions ont été les suivantes :
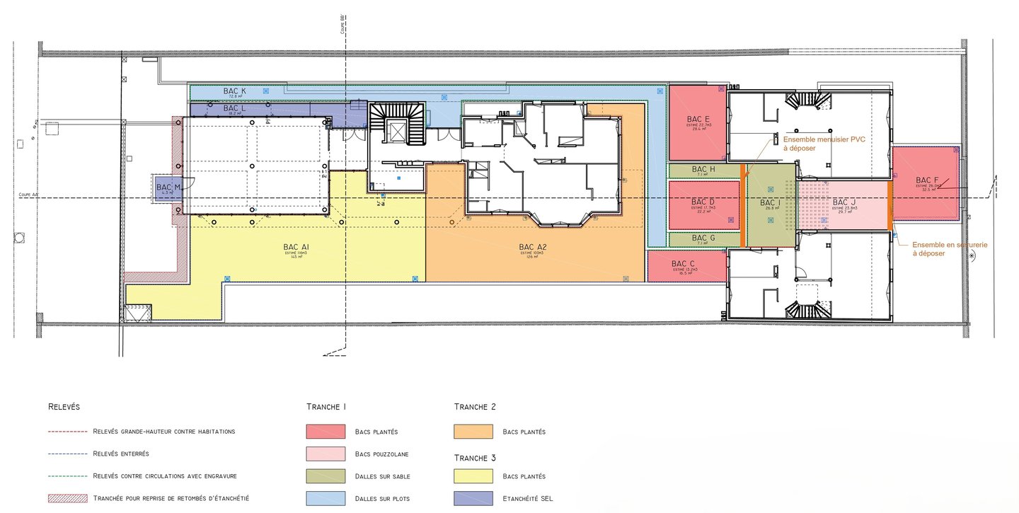
• Diagnostic de l'état des structures, des étanchéités, et plus généralement de tout équipement menacé par la mauvaise réalisation initiale de l'étanchéité sous dalles.
• Définition, en collaboration avec un bureau d'étude indépendant, d'un programme de travaux pour la reprise des structures bétons menacées.
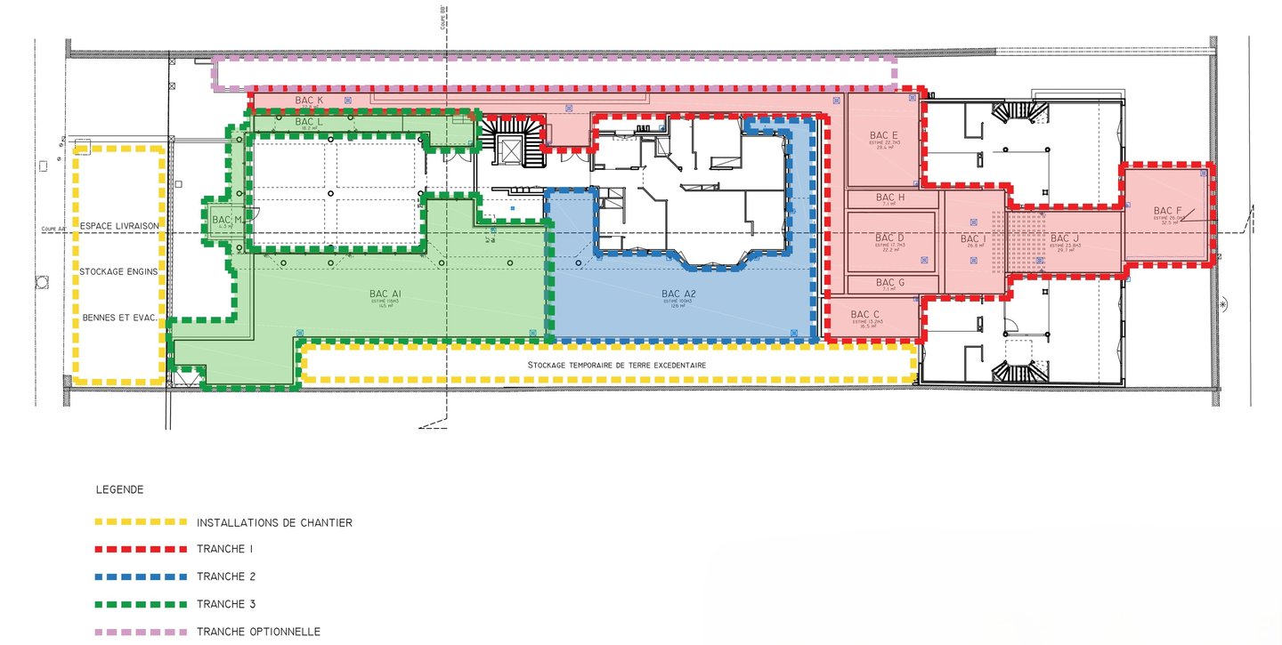
• Réalisation d'un programme de travaux global intégrant les travaux de reprises de structures et d'étanchéités, comprenant le phasage opérationnel (grande masse de terre végétale et végétaux à déplacer) et la prise en compte des contraintes techniques du site (accessibilité difficile aux engins de chantier).
• Consultations des entreprises spécialisées, mise en concurrence et préparation des marchés de travaux.
• Présentation du projet et des résultats de la consultation en assemblée générale des copropriétaires.
Travaux prévus pour l'été 2025.
Galerie photos


















Galerie des plans












Tel I Whats'App : 07.60.35.91.29
EURL au capital de 5.000€ I SIRET 942495565 I MAF 179068/B
Ordre des Architectes : S25573