Immeuble parisien
Rénovation avec mise en place d'une isolation par l'extérieure (ITE) d'un immeuble d'habitations parisien.
À propos
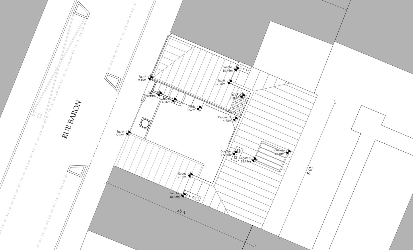
Au cœur du 17e arrondissement parisien, cet immeuble d'habitations appartenant à un grand bailleur international nécessitait un projet de rénovation globale, comprenant un volet thermique, esthétique, environnemental, et technique (ITE, équipements techniques, menuiseries extérieures, etc.).
En charge de ce projet au sein de l'agence Aroa , mes missions furent diverses, tant pour saisir la complexité du projet au vu de sa grande hétérogénéité architecturale (accolement de plein d'édifices d'époque et de natures différentes), que pour répondre aux nombreuses exigences du client. Les services rendus furent donc les suivants :
• Relevé et étude de la faisabilité technique et urbanistique du projet.
• Réalisation d'un programme de travaux global, prenant en compte les nombreuses contraintes économiques, techniques et architecturales du bâtiment.
• Réalisation du dossier de demande d'urbanisme pour l'opération.
• Réalisation d'un budget et d'un planning prévisionnel, avec présentation de l'ensemble au siège de l'entreprise bailleur.
• Réalisation du dossier de consultation des entreprises, comprenant CCTP, dossier graphique, réalisation de détails techniques, sélection des produits, etc.
Galerie photos


Galerie des plans




















Tel I Whats'App : 07.60.35.91.29
EURL au capital de 5.000€ I SIRET 942495565 I MAF 179068/B
Ordre des Architectes : S25573