
Le moulin normand
Extension et rénovation d'un ancien moulin en Normandie, à des fins de transformation en gîtes et lieu de séminaire.
À propos
Situé dans un petit village de l’Eure, le projet prend place dans un ensemble architectural inscrit au patrimoine de la ville et dont le maître d’ouvrage souhaite transformer l’ancienne maison de famille, ainsi qu'une grange attenante, en lieu de séminaire et de gîtes respectueux de l’environnement où il a grandit. Pour y parvenir, le projet se déploie sur de multiples interventions à plusieurs échelles telles que :
• La transformation de la grange (aujourd’hui seulement hors d’eau) en ERP, à destination de salle de séminaire. Dans ce but, il prévoit l’aménagement intérieur de la grange conformément à la réglementation ERP et de sécurité incendie, ainsi que la création d’un parking végétalisé en dalles type «Evergreen». Un cheminement extérieur depuis ce parking avec élément architectural d’appel à l’entrée en structure bois est également mis en place, dans la cour commune avec la maison de maître.
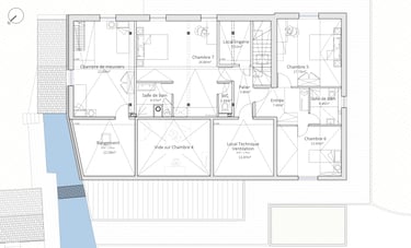
• L’extension et la rénovation de la maison de maître à destination de gîtes. L’opération comprend notamment la création d’une extension à ossature bois de 45m² SP, en quasi lieu et place du auvent de garage existant, l’aménagement des combles avec création d’une lucarne rampante en pans de bois traditionnels, la réfection et mise en protection derrière bardage bois du pignon Nord, dont la maçonnerie en brique à proximité immédiate du cours d’eau et l’ orientation plein Nord soumise aux intempéries présente un état de vétusté préoccupant, ainsi que la rénovation et l’ aménagement intérieur de la maison.
• La révision complète du système de chauffage et d’assainissement, par la mise en place d’une pompe à chaleur géothermique alimentée par la turbine du cours d’eau naturellement présent sur le site, ainsi que la réfection complète de l’assainissement individuel des réseaux EU, EP et EV.
Galerie photos












Galerie des plans
































Tel I Whats'App : 07.60.35.91.29
EURL au capital de 5.000€ I SIRET 942495565 I MAF 179068/B
Ordre des Architectes : S25573